0
«Лучший строитель - 2021, 2022, 2023, 2024»
+7 (343) 317-26-27 ЗАКАЗАТЬ ЗВОНОК
145
1
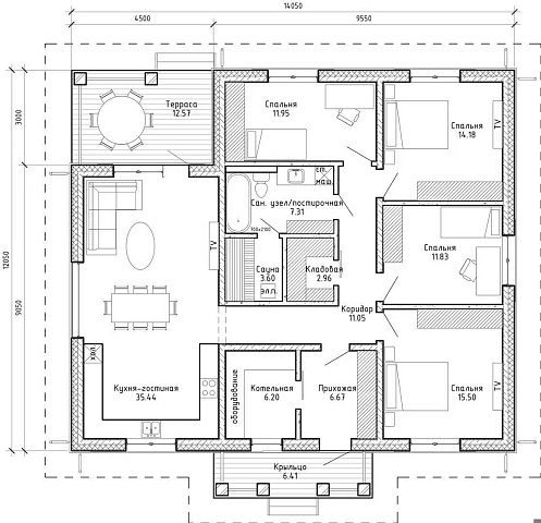
Площадь: 175 м2
Материал стен Газоблок
Размер дома 12х14
Кол-во спален с 4 спальнями
Санузлы 1
Срок строительства, от 120 дней
Гараж без гаража
Тип дома дом из газоблока

Способы покупки

  • В ипотеку
  • Мат. капитал
  • Единовременная оплата
  • Рассрочка
Цена: 11 375 000 руб.
Рассчитать ипотеку
Оставить заявку
Что входит в комплектацию дома
Геология
01
Геология
Проект
02
Проект
Фундамент
03
Фундамент
Коробка
04
Коробка
Фасад
05
Фасад
Кровля
06
Кровля
Технические характеристики комплектации
Фундамент
Фундамент

Геологические исследования грунта

  • Геологические изыскания – это целая группа исследований, ориентированных на определение геологических и гидрогеологических условий на участке, намеченном для строительства частного дома.
  • Комплекс мероприятий представлен не только полевыми испытаниями на местности, но и проведением лабораторных, камеральных анализов, составлением прогнозов касательно развития опасных геологических процессов под воздействием природных и антропогенных факторов.
  • Исследование проводится путем бурения 3-х скважин глубиной 6 метров с отбором грунта. Отобранный грунт проходит лабораторные исследования физических и механических свойств, По результатам исследований составляется отчет, который используется при расчетах несущей способности фундамента.

Проект КЖ (Конструкции Железобетонные)

  • Расчет статических нагрузок на фундамент в программе СКАД.
  • Разработка проекта КЖ в программе Autocad.

Привязка осей на местности

  • Привязка осей совместно с заказчиком, составления акта привязки.
  • Привязка реперной точки нулевой отметки с заказчиком.
  • Проверка красных линий на участке. Согласование с коттеджным поселком (если требуется).
  • Фотофиксация привязки.

Бетон Б15 (М250)

  • Подбор и проверка БРУ (бетонного-растворно узла) по чеклистам и по географии.
  • Проверка бухгалтерской отчетности.
  • Проверка наличия собственного парка миксеров.
  • Проверка паспорта качества 1кат. по ГОСТ 7473-2010 с заполнением всех пунктов.

Монолитный ж/б ростверк

Сечение ростверка 400(600)х800(h) мм

Первый этап работ:

  • Удаление плодородного слоя;
  • Бурение и заливка свай;
  • Песчано-гравийная подушка;
  • Уплотнение ПГП;
  • Гидроизоляция;
  • Бетон Б15 (М250);
  • Опалубка из ламинированной фанеры;
  • Гидроизоляция и утепление фундамента.

Заливка:

  • Контроль погодных условий. Заливка зимой осуществляется при соответствии температуры противоморозной добавки и погодных условий с учетом возможных похолоданий в ближайшие 2 суток.
  • Виброусадка;
  • Использование бетононасоса;
  • Контроль заливки со стороны менеджера, инженера технического надзора. Фотофиксация процесса заливки;
  • Точность высотных отметок 20 мм по всей длине ростверка

Набор прочности:

  • Уход за бетоном. Летом - поливка. Зимой - укрывание или прогревание, в зависимости от условий;
  • Контроль набора прочности склерометром. Не менее 12.5 МПа (для Деревянного дома), 15 Мпа (для кирпичного);
  • Шлифовка при необходимости для выведение до норм точности.

Буронабивные сваи

  • Диаметр свай 400мм, длина 3000мм, марка бетона М250 (Б15);
  • В серийных проектах мы используем буронабивные сваи диаметром 400мм и длиной 3 метра, если иное не требуется по результатам геологии.
  • Сваи бурятся на площадке специальной техникой - ямобуром. После заливки свай производится перевязка каркаса с ростверком.

Приемка инженером технического надзора

Приемка скрытых работ:

  • Приемка инженером технического надзора по чеклисту.
  • Контроль защитного слоя арматуры 50-20мм+10мм.
  • Контроль толщины песчастной подсыпки +-50мм.
  • Контроль допуска между стержнями продольной арматуры -20+40мм.
  • Контроль отклонения скважин от оси ростверка +-150мм.
  • Контроль диаметра арматуры, шага каркаса, технологий вязки на соответствие КЖ.
  • Контроль надежности опалубки.
  • Контроль разрыва арматуры с грунтом.
  • Контроль перевязки арматурного каркаса ростверка с арматурой свай.
  • Фотофиксация скрытых работ.

Окончательная приемка

  • Приемка инженером технического надзора по чеклисту.
  • Контроль геометрии прямолинейность +-30мм. Отклонения по диагоналям 30/40/50мм при размерах (до 8м,8-16м,свыше 16м соотвественно).
  • Фиксация окончательной приемки в личном кабинете заказчика.
Стены и Перекрытия - Каменный дом
Стены и Перекрытия - Каменный дом

Рабочий проект АС

  • В состав рабочего проекта АС (Архитектурно-Строительные решения) входят:
  • Общие указания;
  • Кладочные планы с ведомостью перемычек и узлами;
  • Разрезы;
  • Узлы и Сечения;
  • Планы перекрытий всех этажей, ведомость деталей, спецификация элементов, узлы и детали перекрытий.

Блок стеновой ИНСИ

  • Плотность D500;
  • Размеры 600х250х400мм;
  • Прочность B25. При относительно небольшой объемной массе 500-600 кг/м3 газобетон (ИНСИ-блок) обладает достаточно высокой прочностью 28-40 кгс/см2 за счет автоклавной обработки.
  • Экологичность. ИНСИ-блок производится из песка, извести, цемента, гипса и алюминиевой пудры. Он не выделяет токсичных веществ (в отличии от стиролов) и по своей экологичности уступает лишь дереву, но при этом, в отличие от дерева, не гниет и не стареет. Экологическая чистота применяемых сырьевых материалов подтверждена сертификатами и гарантирует полную безопасность, радиационный фон не превышает 9-11 мкр/ч. Не содержит шлака, стиролов и других вредных веществ.
  • Комфорт. Дом из ИНСИ-блока, классифицируется как каменное строение, но микроклимат в домах из газобетона автоклавного твердения близок к микроклимату в деревянных домах – в жару в них прохладно, а зимой тепло и уютно. Благодаря структуре с открытыми порами, ИНСИ-блоки обладают высокой паропроницаемостью, что позволяет стенам «дышать», тем самым, поддерживая оптимальный температурно-влажностный баланс

Армирование газоблока

  • Армирование металической арматурой А3, ф8мм, 2 штробы;
  • Армируются первый и каждый четвертый ряд;
  • Армируются подоконные зоны с выпуском в 500мм в каждую сторону.

Теплая кладочная смесь

  • Прочная, влагостойкая, морозостойкая, экономична и удобна в применении;
  • Толщина клеящего слоя 2-4 мм;
  • Для зимнего периода используется, зимняя клеевая смесь.

Перекрытия из сборно железобетонных плит

  • Произведены по ГОСТ 26434-85;
  • Расчетная равномерно распределенная нагрузка 800кгс/м2;
  • Толщина 220мм;

Перемычки железобетонные

  • перемычки соответствуют ГОСТу 948-84

Приемка инженером технического надзора

  • Приемка инженером технического надзора по чек-листу;
  • Контроль геометрических размеров и положение конструкций;
  • Контроль качества поверхностей фасадных не оштукатуриваемых стен;
  • Контроль правильности устройства дымовых и вентиляционных каналов в стенах;
  • Контроль правильности перевязки швов, их толщину и заполнение, а также горизонтальность рядов и вертикальность углов кладки;
Кровля
Кровля

Рабочий проект КД кровли

  • Уникальные кровельные узлы, обеспечивающие высокий уровень шумоизоляции;
  • Расчёт снеговой и ветровой нагрузки на силовую конструкцию кровли, выполненный штатным конструктором в системе СКАД;
  • Покрытие кровли - Гибкая битумная черепица с цветным каменным гранулятом;
  • Толщина гибкой черепицы: 3,1 ± 0,2 мм;
  • Тип битума: SBS-модифицированный;
  • Высокие эксплуатационные качества: неподверженность гниению, коррозии и огню.

Утепление 200 мм.

  • Негорючие, гидрофобизированные, легкие теплоизоляционные плиты из каменной ваты на основе базальтовых пород.

Гидро-ветрозащитная мембрана Изоспан АМ

  • Трехслойная диффузионная мембрана из нетканого полиэтилена высокой плотности;
  • Водонепроницаемая;
  • Ветронепроницаемая;
  • Паропроницаемая.

Пароизоляционная пленка Изоспан Б

  • Многослойная паронепроницаемая плёнка из полипропилена, обеспечивает 100 % надежность от проникновения водяного пара в строительную конструкцию;
  • Пароизоляция позволяет сохранять теплоизолирующие свойства утеплителя и продлевает срок службы всей конструкции, защищает внутреннее пространство здания от проникновения частиц волокнистого утеплителя.

Комплектующие, фурнитура

  • Усиленные уголки из оцинкованной стали 2 мм;
  • Стальные оцинкованные саморезы.

Водосточная система Docke

  • Трубы и желоба из ПВХ.

Подшивная доска для свесов кровли

  • Подшивочная доска для свесов кровли из ПВХ (Соффит);
  • Имеет необходимые технические зазоры для обеспечения вентиляции подкровельного пространства;
  • Вентиляция подкровельного пространства нужна для предотвращения появления наледи и сосулек на крыше.

Приемка инженером технического надзора

  • Контроль качества в 3 этапа с фотофиксацией;
  • Стропильная система, пароизоляционная пленка;
  • Утепление;
  • Финишное покрытие, водосточная система.
Фасад - декоративная штукатурка
Фасад - декоративная штукатурка

Эскзизный проект

  • 4 видовых кадра с будущим домом;
  • подбор цветового решения дома;
  • выбор фактуры и декоративных элементов.

Очистка и грунтовка поверхности

  • очистка поверхности стен от загрязнения и пыли;
  • придание конструкции влагостойкости;
  • улучшение адгезии;

Утепление 50мм

  • Негорючие, гидрофобизированные, легкие теплоизоляционные плиты из каменной ваты на основе базальтовых пород;
  • улучшает шумо и теплоизоляцию здания;
  • фиксация утеплителя клеевым раствором;
  • механическая фиксация утеплителя, дюбелями для термоизоляции.

3 слоя базовой штукатурки

  • устойчивость к резким перепадам температур;
  • влагонепроницаемость;
  • прочность и надежность;
  • паропроницаемость;

Армирование штукатурки

  • обеспечивает защиту отштукатуренной наружной поверхности от образования трещин; 
  • снижает нагрузку, вызываемую перепадами температуры и влажности; 
  • увеличивает механическую прочность поверхности.

Утепленые откосы

  • увеличение теплопроводности;
  • уменьшение мостиков холода.

Декоративный слой

  • 3 основные фактуры: короед, шуба, камешковая
  • ударопрочная;
  • обладает высокой паропроницаемостью;
  • гидрофобная;
  • устойчива к ультрафиолетовым лучам;
  • атмосферо- и морозостойкая;
  • пригодна для внутренних и наружных работ;
  • экологически безопасна.

Приемка инженером технического надзора

  • Контроль утепления стен;
  • Приемка армирование стены;
  • Приемка плоскости стен;
  • Контроль нанесения декоративного слоя.
Сопровождение строительства
  • Организация проживания рабочих (бытовка)
  • Электрификация участка
  • Организация туалета
  • Уборка территории
  • Вывоз мусора

Описание проекта:

Робин, дом из газоблока - этот уютный дом из газоблока сочетает в себе современный стиль и функциональность. Площадь в 175 кв. м. делает его идеальным выбором для семьи, обеспечивая комфортное пространство для жизни. Дом строится за срок от 120 дней, что позволяет быстро начать новую главу в жизни.

Планировка:

Размер дома: 12 м x 14 м, что позволяет создать удобное и эргономичное пространство.
Спальни: 4 уютные спальни для комфортного отдыха.
Санузлы: 1 функциональных санузла, удобно расположенных в доме.

Выгодно построить дом в ипотеку

Выгодно построить дом в ипотеку

Размер ежемесячного платежа:

руб/мес*
Стоимость дома
Первоначальный взнос
Срок кредита
оставить заявку

*актуальные тарифные ставки и ипотечное кредитование предоставляются банками-партнерами

Подборки проектов домов в Екатеринбурге

Проекты домов без гаража в Екатеринбурге Проекты домов в современном стиле в Екатеринбурге Проекты современных домов с 4 спальнями в Екатеринбурге Проекты современных домов без гаража в Екатеринбурге Проекты домов с 4 спальнями без гаража в Екатеринбурге Проекты домов с террасой в Екатеринбурге Проекты домов 12x12 без гаража в Екатеринбурге Проекты домов 12x12 с 4 спальнями в Екатеринбурге Проекты домов 12x12 с террасой в Екатеринбурге Проекты домов без гаража с террасой в Екатеринбурге Проекты домов в современном стиле 12x12 в Екатеринбурге Проекты домов из газоблока 12x12 в Екатеринбурге Проекты современных домов с террасой в Екатеринбурге Проекты одноэтажных домов с гаражом и террасой в Екатеринбурге Проекты домов до 180 кв.м. в Екатеринбурге Проекты одноэтажных домов до 180 кв.м. в Екатеринбурге Проекты домов с 4 спальнями с террасой в Екатеринбурге Проекты домов из газоблока с террасой в Екатеринбурге Каталог проектов в Екатеринбурге Проекты домов с 4 спальнями в Екатеринбурге Проекты домов 12x12 в Екатеринбурге Проекты домов до 180 кв.м. с террасой в Екатеринбурге Проекты домов до 180 кв.м.с 4 спальнями в Екатеринбурге Проекты домов до 180 кв.м. 12x12 в Екатеринбурге Проекты современных домов до 180 кв.м. в Екатеринбурге Проекты домов из блока до 180 кв.м. в Екатеринбурге Проекты домов из газоблока до 180 кв.м. в Екатеринбурге

Похожие проекты

3034
Изольда
дом из газоблока
4578
328 м2
одноэтажный
360 800 ₽
проект
21.3 млн. ₽
строительство
45371
Кальдерон
дом из газоблока
216
278 м2
одноэтажный
278 000 ₽
проект
20.9 млн. ₽
строительство
45211
Изабелла
дом из газоблока
254
209 м2
одноэтажный
209 000 ₽
проект
16.7 млн. ₽
строительство
45095
Маэстро
дом из газоблока
1690
350 м2
одноэтажный
385 000 ₽
проект
24.5 млн. ₽
строительство

Спецпредложения строительной компании «Все Строй»
в Екатеринбурге

Помощь в выборе участка под строительство дома

Уже давно мечтаете о собственном загородном доме и не знаете с чего начать? Откроем небольшой секрет – начинать лучше с выбора участка. Ведь именно хороший участок может сэкономить даже не 1 млн рублей. Наша команда расскажет о нюансах выбора и с удовольствием поможет вам подобрать удачное место для будущего строительства.

подробнее
Смета на строительство
Как избежать ошибок в расчётах стройматериалов? Сколько финансовых вложений потребуется для строительства и отделки дома? Ответы на эти вопросы можно получить из грамотно составленной сметы. О том, какие еще задачи она решает, расскажем подробнее.
подробнее
Консультация с ведущим архитектором - как выбрать проект дома
Мечта о доме начинается с выбора проекта  или четкого понимания какой дом вам нужен. Ведь нет ничего хуже, чем дом не по размеру, или дом не подходящий вашему стилю жизни и темпераменту - да-да и такое тоже бывает. Расскажем подробнее как выбирать дом.
подробнее

Получить бесплатную консультацию
по строительству дома
в Екатеринбурге

Участки
01
Посоветуем какие участки лучше покупать
под строительство дома, чтобы избежать в
дальнейшем лишних затрат
Оставить заявку
Площадь
02
Поможем правильно рассчитать необходимую
площадь для комфортного проживания
именно вашей семьи
Оставить заявку
Материалы
03
Подробно расскажем о плюсах и минусах
всех современных материалах
для строительства
Оставить заявку
Этапы
04
Расскажем обо всех этапах
строительства
дома
Оставить заявку
Экскурсия
05
Проведем экскурсию по построенным нами
домам и предоставим возможность
пообщаться с их владельцами
Оставить заявку
Ипотека
06
Проконсультируем по строительству в ипотеку
Оставить заявку

Не нашли подходящий проект?
Закажите индивидуальный!
Заказать

Видео-обзоры домов и коттеджей

Видео презентация | Строительная Компания "Все Строй"
Видео презентация | Строительная Компания "Все Строй"

"Видео презентация | Строительная Компания "Все Строй" - видео компании СК Все Строй"

Дата загрузки: 2024-11-25 12:56:16

Видео презентация | Строительная Компания "Все Строй"
Квартира для молодой семьи на 70кв.м.
Квартира для молодой семьи на 70кв.м.

"Квартира для молодой семьи на 70кв.м. - видео компании СК Все Строй"

Дата загрузки: 2024-11-25 12:33:06

Квартира для молодой семьи на 70кв.м.
Дом в березовой роще 333 кв.м.
Дом в березовой роще 333 кв.м.

"Дом в березовой роще 333 кв.м. - видео компании СК Все Строй"

Дата загрузки: 2024-11-25 12:31:29

Дом в березовой роще 333 кв.м.
День со строителем: секреты возведения качественных домов
День со строителем: секреты возведения качественных домов

"День со строителем: секреты возведения качественных домов - видео компании СК Все Строй"

Дата загрузки: 2024-11-25 12:14:50

День со строителем: секреты возведения качественных домов
Спа-комплекс твоей мечты
Спа-комплекс твоей мечты

"Спа-комплекс твоей мечты - видео компании СК Все Строй"

Дата загрузки: 2025-06-03 15:16:49

Спа-комплекс твоей мечты
Фальцевая кровля: почему она такая популярная и дорогостоящая?
Фальцевая кровля: почему она такая популярная и дорогостоящая?

"Фальцевая кровля: почему она такая популярная и дорогостоящая? - видео компании СК Все Строй"

Дата загрузки: 2025-03-25 09:17:05

Фальцевая кровля: почему она такая популярная и дорогостоящая?
С чего на самом деле начинается стройка
С чего на самом деле начинается стройка

"С чего на самом деле начинается стройка - видео компании СК Все Строй"

Дата загрузки: 2025-03-06 12:25:02

С чего на самом деле начинается стройка
Как уберечь керамогранит от повреждений во время дальнейших работ
Как уберечь керамогранит от повреждений во время дальнейших работ

"Как уберечь керамогранит от повреждений во время дальнейших работ - видео компании СК Все Строй"

Дата загрузки: 2025-03-04 11:46:41

Как уберечь керамогранит от повреждений во время дальнейших работ
Оставить заявку
  • Присылаем фотографии и видео о ходе стройки и проделанной работе
  • Держим Вас в курсе всего, что происходит на строительной площадке
  • Отвечаем на интересующие Вас вопросы
  • Смета у Вас всегда под рукой
  • Оплата осуществляется по этапам строительства, согласно смете
  • Скачать смету
  • Регулярно снимаем и присылаем Вам видео со строительной площадки

Отзывы о нас

4,6
35 отзывов
4,9
59 отзывов
4,5
17 отзывов
4,8
13 отзывов
Георгий П
Георгий П
Анатолий
Анатолий
Алексей Н
Алексей Н
Роман Е
Роман Е
Александр Г
Александр Г
Ксения П
Ксения П
Александр А
Александр А
Сергей З
Сергей З
Кристина Д
Кристина Д
Фиксированная <span>цена</span>
Фиксированная цена
Стоимость выполнения работ фиксируется в договоре и гарантированно больше не возрастет.
5 лет <span>гарантии</span>
5 лет гарантии
Осуществляем тотальный контроль за всем циклом. И уверенно даем официальную гарантию на построенные нами дома.
Квалифицированные <span>узкоспециальные рабочие</span>
Квалифицированные узкоспециальные рабочие
Отдельные виды работ в нашей компании выполняют узкоспециализированные бригады. Такой подход гарантирует высокое качество работ в короткие сроки.
Контроль качества <span>работ и материалов</span>
Контроль качества работ и материалов
На каждом этапе стройки ведется жесточайший контроль за качеством. Закуп материалов производится только у проверенных поставщиков.